1.28.2009
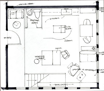
20' x 20' Loft Project
Concept Sketch
Main Level Floor Plan
Mezzanine Level Floor Plan
North Wall Elevation
South Wall Elevation
Newer Post
Older Post
Home